Gealan Linear – stylový okenní profil
Systém Gealan Linear je moderní vícekomorový plastový profil s rovným, úzkým designem. Je navržen tak, aby splňoval nároky současného bydlení: dobré izolační parametry, čistý vzhled a možnost širokého použití v novostavbách i rekonstrukcích. Vhodný pro okna, vchodové dveře i posuvné dveře.
Hlavní praktické přednosti
- Design – rovné, moderní linie ladí s aktuálními architektonickými trendy. Štíhlé, hranaté tvary rámů, více světla v interiéru.
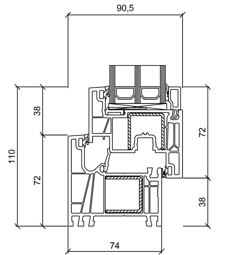
- Tepelná izolace – stavební hloubka 74 mm a šestikomorová konstrukce umožňují dosahovat nízkých hodnot Uw, vhodných i pro nízkoenergetické domy.
- Úzký rám – větší plocha skla, více denního světla v interiéru.
- Univerzálnost – vhodný jak do novostaveb, tak pro rekonstrukce. Umí okna, dveře i posuvné řešení.
- Design – rovné, moderní linie ladí s aktuálními architektonickými trendy.
- Široká škála povrchů a barev – včetně technologie Acrylcolor® (odolný PMMA povrch, dlouhá životnost, minimální údržba). Více zde
- Kompatibilita – možnost kombinace s doplňky a technologiemi Gealan (např. STV – lepené zasklení, IKD – pěnová izolace komor).
- Trvanlivost – odolný plast s minimálními nároky na údržbu, široká nabídka barevných a dřevodekorových fólií.
- Bezpečnost – vysoká odolnost vůči vloupání při správném zasklení a kování.
Shrnutí vůči ostatním profilům Gealan:
- Linear = moderní vzhled, dobrá izolace, střední třída.
- S 9000 / Futura = vyšší izolace, vhodné i pro pasivní domy.
- S 8000 / Plus = cenově dostupnější, pro rekonstrukce nebo méně náročné projekty.
- Lumaxx = podkategorie Linearu s maximálním důrazem na plochu skla (extrémně úzké rámy).
Technické vlastnosti

| Profilový systém | GEALAN LINEAR® |
| Konstrukční hloubka systému | 74 mm |
| Varianty provedení |
Bílá GEALAN-acrylcolor® Dekorační fólie |
| Výška při převrácení |
Rám: 26 mm Křídlo: 18 mm |
| Maximální tloušťka zasklení |
až 48 mm (těsnění), až 50 mm (STV®) |
| Hodnota Uf | 1,0 W/(m2K) |
| Typy řešení |
Okenní systémy Vchodové dveře Posuvná řešení |
| Testované výkonnostní parametry |
Těsnost proti přívalovému dešti (dle DIN EN 12208): až třída 9A Průvzdušnost (dle DIN EN 12207): až třída 4 Odolnost proti zatížení větrem (dle DIN EN 12210): až třída C5/B5 Odolnost proti nárazu: až třída 3 Zvuková izolace: 34 až 47 dB |
Soubory ke staženi